Представительский офис с демо-залом

25.11.2021

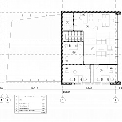
Офисное здание для компании-производителя строительной техники с демонстрационным залом. Гнутоклееные балки стропильной системы формируют красивую изогнутую кровлю двухэтажного офисного объёма, облицованного кирпичом, и пространства для демонстрации строительной техники.


Связаться с нами